Pièces détachées de chauffage et climatisation
Plus de 650 000 références fabricants disponibles
Livraison en France et en Belgique
4.7
MARQUES ▾
CATALOGUES ▾
VUES ÉCLATÉES ▾ CODES DÉFAUTS ▾
OUTILS DE RECHERCHE ▾
FAQ / TUTOS
DÉSTOCKAGE
>
VOTRE RECHERCHE

Chaudière Atlantic Guillot CONDENSINOX 40 (040928)



page 2
page 6
page 8
page 10
Pièces détachées Chaudière Atlantic Guillot CONDENSINOX 40 (040928) chez Pièces Express


Référence fabricant
Position Schéma


Les images des vues éclatées peuvent contenir des prix datant de plusieurs années, merci de ne pas en tenir compte










Pièces détachées contenues dans cet appareil Chaudière Atlantic Guillot CONDENSINOX 40 (040928)



Photo Position vue éclatée Article Référence fabricant Disponibilité et prix  
Filerie principale tdc condensinox Atlantic Guillot 072966
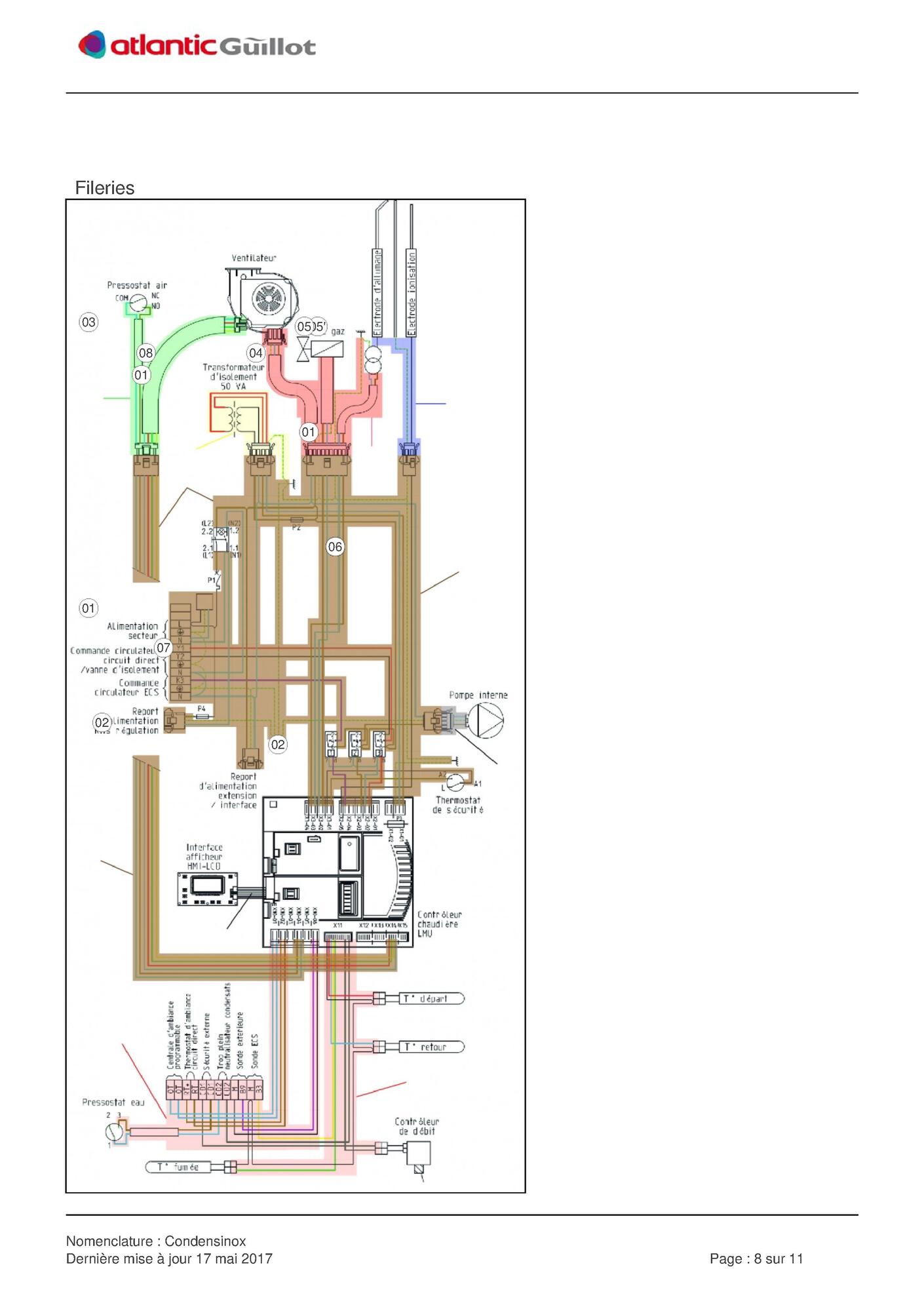
01 page 8 Filerie principale tdc condensinox
Code article PEX: 258762
Atlantic Guillot
Réf fabricant: 072966
± 3 jours ouvrés
441,73 € TTC
Bloc electrodes seul + joint g/cdx Atlantic Guillot 079174
1 page 10 Bloc electrodes seul + joint g/cdx
Code article PEX: 625125
Atlantic Guillot
Réf fabricant: 079174
en stock
127,76 € TTC
Coffret commande lmu64 condensinox 40 Atlantic Guillot 072353
1 page 2 Coffret commande lmu64 condensinox 40
Code article PEX: 258360
Atlantic Guillot
Réf fabricant: 072353
± 3 jours ouvrés
531,89 € TTC
Filerie sondes tdc condensinox Atlantic Guillot 072967
02 page 8 Filerie sondes tdc condensinox
Code article PEX: 258763
Atlantic Guillot
Réf fabricant: 072967
± 3 jours ouvrés
156,23 € TTC
Disjoncteur thermique 8a Atlantic Guillot 073575
2 page 2 Disjoncteur thermique 8a
Code article PEX: 259009
Atlantic Guillot
Réf fabricant: 073575
± 3 jours ouvrés
47,54 € TTC
Disjoncteur thermique condensinox Atlantic Guillot 071896
2 page 2 Disjoncteur thermique condensinox
Code article PEX: 258096
Atlantic Guillot
Réf fabricant: 071896
± 3 jours ouvrés
sur devis
Tresse ceramique 14x14-1,5 porte bruleur Atlantic Guillot 000337
2 page 10 Tresse ceramique 14x14-1,5 porte bruleur
Code article PEX: 202858
Atlantic Guillot
Réf fabricant: 000337
en stock
122,69 € TTC
Filerie commande bruleur condensinox Atlantic Guillot 076203
03 page 8 Filerie commande bruleur condensinox
Code article PEX: 290123
Atlantic Guillot
Réf fabricant: 076203
± 3 jours ouvrés
46,98 € TTC
Filtre air multiproduits (el. filtrant) Atlantic Guillot 073417
3 page 10 Filtre air multiproduits (el. filtrant)
Code article PEX: 258951
Atlantic Guillot
Réf fabricant: 073417
en stock
35,35 € TTC
Tableau cde condensinox (sans coffret) Atlantic Guillot 072227
3 page 2 Tableau cde condensinox (sans coffret)
Code article PEX: 258278
Atlantic Guillot
Réf fabricant: 072227
 
obsolète
 
Cable alimentation vanne gaz condensinox Atlantic Guillot 072775
04 page 8 Cable alimentation vanne gaz condensinox
Code article PEX: 258627
Atlantic Guillot
Réf fabricant: 072775
± 3 jours ouvrés
60,26 € TTC
Fusible f1a 5x20 (x10) coffret controle Atlantic Guillot 060449
4 page 2 Fusible f1a 5x20 (x10) coffret controle
Code article PEX: 255662
Atlantic Guillot
Réf fabricant: 060449
± 3 jours ouvrés
26,20 € TTC
Bloc electrodes seul + joint g/cdx Atlantic Guillot 079174
05 page 8 Bloc electrodes seul + joint g/cdx
Code article PEX: 625125
Atlantic Guillot
Réf fabricant: 079174
en stock
127,76 € TTC
D electrodes condensinox Atlantic Guillot 079373
05\ page 8 D electrodes condensinox
Code article PEX: 625126
Atlantic Guillot
Réf fabricant: 079373
± 3 jours ouvrés
73,27 € TTC
Fusible t2a 5x20 (x10) transfo.isolement Atlantic Guillot 060448
5 page 2 Fusible t2a 5x20 (x10) transfo.isolement
Code article PEX: 255661
Atlantic Guillot
Réf fabricant: 060448
± 3 jours ouvrés
27,65 € TTC
Cable alimentation circulateur mc Atlantic Guillot 073624
06 page 8 Cable alimentation circulateur mc
Code article PEX: 259025
Atlantic Guillot
Réf fabricant: 073624
± 3 jours ouvrés
34,40 € TTC
Fusibles 6.3a 5x20 (boite de 10) Atlantic Guillot 071898
6 page 2 Fusibles 6.3a 5x20 (boite de 10)
Code article PEX: 258098
Atlantic Guillot
Réf fabricant: 071898
± 3 jours ouvrés
29,72 € TTC
Nappe afficheur Atlantic Guillot 072372
07 page 8 Nappe afficheur
Code article PEX: 258376
Atlantic Guillot
Réf fabricant: 072372
± 3 jours ouvrés
39,22 € TTC
Interface/afficheur hmi-lcd Atlantic Guillot 060430
7 page 2 Interface/afficheur hmi-lcd
Code article PEX: 255646
Atlantic Guillot
Réf fabricant: 060430
± 3 jours ouvrés
195,62 € TTC
Transformateur isolement condensinox Atlantic Guillot 071909
08 page 8 Transformateur isolement condensinox
Code article PEX: 258101
Atlantic Guillot
Réf fabricant: 071909
± 3 jours ouvrés
246,04 € TTC
Inter general bipolaire lumineux rouge Atlantic Guillot 070385
8 page 2 Inter general bipolaire lumineux rouge
Code article PEX: 257018
Atlantic Guillot
Réf fabricant: 070385
± 3 jours ouvrés
31,75 € TTC
Relais serie e (moteur) ou mc (pompes) Atlantic Guillot 060084
9 page 2 Relais serie e (moteur) ou mc (pompes)
Code article PEX: 255403
Atlantic Guillot
Réf fabricant: 060084
en stock
42,61 € TTC
Sonde depart/retour qal36.225 Atlantic Guillot 071899
10 page 2 Sonde depart/retour qal36.225
Code article PEX: 258099
Atlantic Guillot
Réf fabricant: 071899
± 3 jours ouvrés
22,63 € TTC
Sonde fumees qak36.670 avec joint Atlantic Guillot 071908
11 page 2 Sonde fumees qak36.670 avec joint
Code article PEX: 258100
Atlantic Guillot
Réf fabricant: 071908
± 3 jours ouvrés
75,79 € TTC
Thermostat de securite Atlantic Guillot 000267
12 page 2 Thermostat de securite
Code article PEX: 202838
Atlantic Guillot
Réf fabricant: 000267
en stock
61,99 € TTC
Transformateur isolement condensinox Atlantic Guillot 071909
13 page 2 Transformateur isolement condensinox
Code article PEX: 258101
Atlantic Guillot
Réf fabricant: 071909
± 3 jours ouvrés
246,04 € TTC
Porte foyere complete condensinox 40-60 Atlantic Guillot 071910
14 page 2 Porte foyere complete condensinox 40-60
Code article PEX: 258102
Atlantic Guillot
Réf fabricant: 071910
± 3 jours ouvrés
532,60 € TTC
Tresse ceramique 14x14-1,5 porte bruleur Atlantic Guillot 000337
15 page 2 Tresse ceramique 14x14-1,5 porte bruleur
Code article PEX: 202858
Atlantic Guillot
Réf fabricant: 000337
en stock
122,69 € TTC
Verre pyrex dia 38 ep. 4.8 + 2 joints Atlantic Guillot 060407
16 page 2 Verre pyrex dia 38 ep. 4.8 + 2 joints
Code article PEX: 202890
Atlantic Guillot
Réf fabricant: 060407
± 3 jours ouvrés
42,05 € TTC
Bloc electrodes seul + joint g/cdx Atlantic Guillot 079174
Bloc electrodes seul + joint g/cdx
Code article PEX: 625125
Atlantic Guillot
Réf fabricant: 079174
en stock
127,76 € TTC
D electrodes condensinox Atlantic Guillot 079373
17\ \ page 2 D electrodes condensinox
Code article PEX: 625126
Atlantic Guillot
Réf fabricant: 079373
± 3 jours ouvrés
73,27 € TTC
Vanne gaz condensinox 40-60 Atlantic Guillot 071912
18 page 2 Vanne gaz condensinox 40-60
Code article PEX: 258105
Atlantic Guillot
Réf fabricant: 071912
± 3 jours ouvrés
256,69 € TTC
Flexible air condensinox 40-60 Atlantic Guillot 071913
19 page 2 Flexible air condensinox 40-60
Code article PEX: 258106
Atlantic Guillot
Réf fabricant: 071913
± 3 jours ouvrés
148,54 € TTC
Joints bruleur condensinox 40-60 Atlantic Guillot 071914
20 page 2 Joints bruleur condensinox 40-60
Code article PEX: 258107
Atlantic Guillot
Réf fabricant: 071914
± 3 jours ouvrés
43,94 € TTC
Pressostat air condensinox 40-60 Atlantic Guillot 071915
21 page 2 Pressostat air condensinox 40-60
Code article PEX: 258108
Atlantic Guillot
Réf fabricant: 071915
En cours de réappro
54,96 € TTC
Rampe gaz condensinox 40-60 Atlantic Guillot 071916
22 page 2 Rampe gaz condensinox 40-60
Code article PEX: 258109
Atlantic Guillot
Réf fabricant: 071916
± 3 jours ouvrés
359,26 € TTC
Transformateur d allumage zag1 Atlantic Guillot 072131
23 page 2 Transformateur d allumage zag1
Code article PEX: 258221
Atlantic Guillot
Réf fabricant: 072131
en stock
60,01 € TTC
Ventilateur condensinox 40-60 Atlantic Guillot 071917
24 page 2 Ventilateur condensinox 40-60
Code article PEX: 258110
Atlantic Guillot
Réf fabricant: 071917
± 3 jours ouvrés
487,56 € TTC
Adapt. concentrique condensinox 40-60 Atlantic Guillot 071918
25 page 2 Adapt. concentrique condensinox 40-60
Code article PEX: 258112
Atlantic Guillot
Réf fabricant: 071918
± 3 jours ouvrés
159,65 € TTC
Conduit fumees condensinox 40-60 Atlantic Guillot 071919
26 page 2 Conduit fumees condensinox 40-60
Code article PEX: 258113
Atlantic Guillot
Réf fabricant: 071919
± 3 jours ouvrés
71,33 € TTC
Controleur de debit Atlantic Guillot 072591
27 page 2 Controleur de debit
Code article PEX: 258521
Atlantic Guillot
Réf fabricant: 072591
en stock
189,74 € TTC
Controleur de debit av. cable Atlantic Guillot 070942
27 page 2 Controleur de debit av. cable
Code article PEX: 257433
Atlantic Guillot
Réf fabricant: 070942
± 3 jours ouvrés
289,00 € TTC
Turbulateurs condensinox 40 Atlantic Guillot 072356
28 page 2 Turbulateurs condensinox 40
Code article PEX: 258362
Atlantic Guillot
Réf fabricant: 072356
± 3 jours ouvrés
301,15 € TTC
Joint trappe de visite baf condensinox Atlantic Guillot 071921
29 page 2 Joint trappe de visite baf condensinox
Code article PEX: 258115
Atlantic Guillot
Réf fabricant: 071921
± 3 jours ouvrés
14,92 € TTC
Trappe de visite baf condensinox Atlantic Guillot 076230
29 page 2 Trappe de visite baf condensinox
Code article PEX: 290138
Atlantic Guillot
Réf fabricant: 076230
± 3 jours ouvrés
108,76 € TTC
Manometre soupape condensinox Atlantic Guillot 071922
30 page 2 Manometre soupape condensinox
Code article PEX: 258116
Atlantic Guillot
Réf fabricant: 071922
± 3 jours ouvrés
59,56 € TTC
Pompe Atlantic Guillot 071923
31 page 2 Pompe
Code article PEX: 663639
Atlantic Guillot
Réf fabricant: 071923
± 3 jours ouvrés
280,26 € TTC
Pompe Atlantic Guillot 079666
31 page 2 Pompe
Code article PEX: 663639
Atlantic Guillot
Réf fabricant: 079666
± 3 jours ouvrés
280,26 € TTC
Purgeur condensinox Atlantic Guillot 071924
32 page 2 Purgeur condensinox
Code article PEX: 258119
Atlantic Guillot
Réf fabricant: 071924
± 3 jours ouvrés
133,99 € TTC
Robinet de vidange condensinox Atlantic Guillot 072577
33 page 2 Robinet de vidange condensinox
Code article PEX: 258508
Atlantic Guillot
Réf fabricant: 072577
± 3 jours ouvrés
42,07 € TTC
Siphon evacuation condensats Atlantic Guillot 071925
34 page 2 Siphon evacuation condensats
Code article PEX: 258120
Atlantic Guillot
Réf fabricant: 071925
 
obsolète
 
Siphon + tube 1200 Atlantic Guillot 078573
34 page 2 Siphon + tube 1200
Code article PEX: 386031
Atlantic Guillot
Réf fabricant: 078573
± 3 jours ouvrés
47,10 € TTC
Bandeau avant condensinox 40-60 Atlantic Guillot 071926
35 page 2 Bandeau avant condensinox 40-60
Code article PEX: 258121
Atlantic Guillot
Réf fabricant: 071926
 
obsolète
 
Capot superieur condensinox 40-60 Atlantic Guillot 071927
36 page 2 Capot superieur condensinox 40-60
Code article PEX: 258122
Atlantic Guillot
Réf fabricant: 071927
± 3 jours ouvrés
sur devis
Porte lat. droite condensinox 40-60 fr. Atlantic Guillot 071928
37 page 2 Porte lat. droite condensinox 40-60 fr.
Code article PEX: 258123
Atlantic Guillot
Réf fabricant: 071928
 
obsolète
 
Jaquette arriere condensinox 40-60 Atlantic Guillot 071929
38 page 2 Jaquette arriere condensinox 40-60
Code article PEX: 258124
Atlantic Guillot
Réf fabricant: 071929
± 3 jours ouvrés
213,05 € TTC
Jaquette laterale condensinox 40-60 Atlantic Guillot 071930
39 page 2 Jaquette laterale condensinox 40-60
Code article PEX: 258126
Atlantic Guillot
Réf fabricant: 071930
± 3 jours ouvrés
sur devis
Goupillon condensinox Atlantic Guillot 072226
42 page 2 Goupillon condensinox
Code article PEX: 258277
Atlantic Guillot
Réf fabricant: 072226
± 3 jours ouvrés
31,38 € TTC
Pressostat eau av. joint Atlantic Guillot 072300
43 page 2 Pressostat eau av. joint
Code article PEX: 258323
Atlantic Guillot
Réf fabricant: 072300
en stock
69,18 € TTC
Dephaseur condensinox 40 Atlantic Guillot 072355
44 page 2 Dephaseur condensinox 40
Code article PEX: 289725
Atlantic Guillot
Réf fabricant: 072355
± 3 jours ouvrés
28,14 € TTC
Corps de chaudiere Atlantic Guillot 078681
45 page 2 Corps de chaudiere
Code article PEX: 386094
Atlantic Guillot
Réf fabricant: 078681
± 3 jours ouvrés
5 974,49 € TTC
Cannes recyclage condensinox 40/60 Atlantic Guillot 076918
46 page 2 Cannes recyclage condensinox 40/60
Code article PEX: 336207
Atlantic Guillot
Réf fabricant: 076918
± 3 jours ouvrés
149,38 € TTC
Turbulateurs condensinox 40 Atlantic Guillot 072356
201 page 6 Turbulateurs condensinox 40
Code article PEX: 258362
Atlantic Guillot
Réf fabricant: 072356
± 3 jours ouvrés
301,15 € TTC
Purgeur condensinox Atlantic Guillot 071924
202 page 6 Purgeur condensinox
Code article PEX: 258119
Atlantic Guillot
Réf fabricant: 071924
± 3 jours ouvrés
133,99 € TTC
Soupape 4 bar m1/2-f1/2 + joint Atlantic Guillot 072165
203 page 6 Soupape 4 bar m1/2-f1/2 + joint
Code article PEX: 258246
Atlantic Guillot
Réf fabricant: 072165
± 3 jours ouvrés
32,76 € TTC
Pompe Atlantic Guillot 071923
204 page 6 Pompe
Code article PEX: 663639
Atlantic Guillot
Réf fabricant: 071923
± 3 jours ouvrés
280,26 € TTC
Pompe Atlantic Guillot 079666
204 page 6 Pompe
Code article PEX: 663639
Atlantic Guillot
Réf fabricant: 079666
± 3 jours ouvrés
280,26 € TTC
Manometre Atlantic Guillot 078647
205 page 6 Manometre
Code article PEX: 386078
Atlantic Guillot
Réf fabricant: 078647
± 3 jours ouvrés
18,07 € TTC
Controleur de debit Atlantic Guillot 072591
206 page 6 Controleur de debit
Code article PEX: 258521
Atlantic Guillot
Réf fabricant: 072591
en stock
189,74 € TTC
Robinet de vidange condensinox Atlantic Guillot 072577
207 page 6 Robinet de vidange condensinox
Code article PEX: 258508
Atlantic Guillot
Réf fabricant: 072577
± 3 jours ouvrés
42,07 € TTC
Siphon + tube 1200 Atlantic Guillot 078573
208 page 6 Siphon + tube 1200
Code article PEX: 386031
Atlantic Guillot
Réf fabricant: 078573
± 3 jours ouvrés
47,10 € TTC
Trappe de visite baf condensinox Atlantic Guillot 076230
209 page 6 Trappe de visite baf condensinox
Code article PEX: 290138
Atlantic Guillot
Réf fabricant: 076230
± 3 jours ouvrés
108,76 € TTC
Joint trappe de visite baf condensinox Atlantic Guillot 071921
210 page 6 Joint trappe de visite baf condensinox
Code article PEX: 258115
Atlantic Guillot
Réf fabricant: 071921
± 3 jours ouvrés
14,92 € TTC
Pressostat eau av. joint Atlantic Guillot 072300
211 page 6 Pressostat eau av. joint
Code article PEX: 258323
Atlantic Guillot
Réf fabricant: 072300
en stock
69,18 € TTC
Sonde depart/retour qal36.225 Atlantic Guillot 071899
212 page 6 Sonde depart/retour qal36.225
Code article PEX: 258099
Atlantic Guillot
Réf fabricant: 071899
± 3 jours ouvrés
22,63 € TTC
_ page 2 Bride alu support bruleur
 
Atlantic Guillot
Réf fabricant: 078550
avec délai
sur devis
Bruleur + porte condensinox 40 Atlantic Guillot 072375
_ page 2 Bruleur + porte condensinox 40
Code article PEX: 258377
Atlantic Guillot
Réf fabricant: 072375
± 3 jours ouvrés
2 574,13 € TTC
Cable alimentation vanne gaz condensinox Atlantic Guillot 072775
_ page 2 Cable alimentation vanne gaz condensinox
Code article PEX: 258627
Atlantic Guillot
Réf fabricant: 072775
± 3 jours ouvrés
60,26 € TTC
Connecteurs pressostat gaz mini pour lmu Atlantic Guillot 072263
_ page 8 Connecteurs pressostat gaz mini pour lmu
Code article PEX: 289723
Atlantic Guillot
Réf fabricant: 072263
± 3 jours ouvrés
58,20 € TTC
Corps de chaudiere Atlantic Guillot 078681
_ page 6 Corps de chaudiere
Code article PEX: 386094
Atlantic Guillot
Réf fabricant: 078681
± 3 jours ouvrés
5 974,49 € TTC
Diaphragme k40 Atlantic Guillot 072492
_ page 2 Diaphragme k40
Code article PEX: 258465
Atlantic Guillot
Réf fabricant: 072492
± 3 jours ouvrés
75,62 € TTC
Face avant condensinox 40-100 Atlantic Guillot 073163
_ page 2 Face avant condensinox 40-100
Code article PEX: 258875
Atlantic Guillot
Réf fabricant: 073163
 
obsolète
 
Filerie principale tdc condensinox Atlantic Guillot 072966
_ page 2 Filerie principale tdc condensinox
Code article PEX: 258762
Atlantic Guillot
Réf fabricant: 072966
± 3 jours ouvrés
441,73 € TTC
Filerie sondes tdc condensinox Atlantic Guillot 072967
_ page 2 Filerie sondes tdc condensinox
Code article PEX: 258763
Atlantic Guillot
Réf fabricant: 072967
± 3 jours ouvrés
156,23 € TTC
Filtre air complet condensinox 40/60 Atlantic Guillot 073733
_ page 2 Filtre air complet condensinox 40/60
Code article PEX: 259075
Atlantic Guillot
Réf fabricant: 073733
± 3 jours ouvrés
101,58 € TTC
Filtre air multiproduits (el. filtrant) Atlantic Guillot 073417
_ page 2 Filtre air multiproduits (el. filtrant)
Code article PEX: 258951
Atlantic Guillot
Réf fabricant: 073417
en stock
35,35 € TTC
Isolation corps condensinox 40/60 Atlantic Guillot 073722
_ page 2 Isolation corps condensinox 40/60
Code article PEX: 259067
Atlantic Guillot
Réf fabricant: 073722
± 3 jours ouvrés
199,74 € TTC
Jaquette superieure condensinox 40-60 Atlantic Guillot 072783
_ page 2 Jaquette superieure condensinox 40-60
Code article PEX: 258634
Atlantic Guillot
Réf fabricant: 072783
± 3 jours ouvrés
sur devis
Joint bride 82 x 129 ep.3 dn65 Atlantic Guillot 072468
_ page 2 Joint bride 82 x 129 ep.3 dn65
Code article PEX: 255756
Atlantic Guillot
Réf fabricant: 072468
± 3 jours ouvrés
16,50 € TTC
Joint Atlantic Guillot 072491
_ page 2 Joint
Code article PEX: 663615
Atlantic Guillot
Réf fabricant: 072491
± 3 jours ouvrés
15,83 € TTC
Joint gaz 2 Atlantic Guillot 072469
_ page 2 Joint gaz 2
Code article PEX: 289737
Atlantic Guillot
Réf fabricant: 072469
± 3 jours ouvrés
42,50 € TTC
Joints air pour conduit 100/150 (x5) Atlantic Guillot 073195
_ page 2 Joints air pour conduit 100/150 (x5)
Code article PEX: 258893
Atlantic Guillot
Réf fabricant: 073195
± 3 jours ouvrés
62,21 € TTC
Joints fumees pour conduit 100/150 (x5) Atlantic Guillot 073196
_ page 2 Joints fumees pour conduit 100/150 (x5)
Code article PEX: 258894
Atlantic Guillot
Réf fabricant: 073196
± 3 jours ouvrés
56,82 € TTC
Nappe afficheur Atlantic Guillot 072372
_ page 2 Nappe afficheur
Code article PEX: 258376
Atlantic Guillot
Réf fabricant: 072372
± 3 jours ouvrés
39,22 € TTC
Pied de mise a niveau m10 cythia-athena Atlantic Guillot 000197
_ page 2 Pied de mise a niveau m10 cythia-athena
Code article PEX: 202810
Atlantic Guillot
Réf fabricant: 000197
± 3 jours ouvrés
25,88 € TTC
Joint Atlantic Guillot 079342
_ page 2 Joint
Code article PEX: 663615
Atlantic Guillot
Réf fabricant: 079342
± 3 jours ouvrés
15,83 € TTC
Robinet de vidange + tuyau Atlantic Guillot 072171
_ page 2 Robinet de vidange + tuyau
Code article PEX: 289720
Atlantic Guillot
Réf fabricant: 072171
± 3 jours ouvrés
18,44 € TTC
Tube de graisse pour joints ventouse Atlantic Guillot 072295
_ page 2 Tube de graisse pour joints ventouse
Code article PEX: 258320
Atlantic Guillot
Réf fabricant: 072295
± 3 jours ouvrés
23,08 € TTC
Tuyaux versilic condensinox 40-60 Atlantic Guillot 072596
_ page 2 Tuyaux versilic condensinox 40-60
Code article PEX: 258526
Atlantic Guillot
Réf fabricant: 072596
± 3 jours ouvrés
22,90 € TTC


Dans cette page vous trouverez l'ensemble des articles et pièces détachées de chaufferie qui composent la nomenclature Chaudière Atlantic Guillot CONDENSINOX 40 (040928) ainsi que des liens vers les articles Atlantic Guillot. En parcourant la page Atlantic Guillot, vous pourrez également trouver toutes les pièces Atlantic Guillot présentes chez Pièces Express. L'indication de stock vous permet de savoir si la pièce détachée est disponible dans notre stock central ou bien avec un délai fournisseur. Dans ce dernier cas, renseignez vous, nous commandons très régulièrement chez chacun de nos fournisseurs, nous pouvons donc certainement répondre à votre besoin rapidement.

Nos marques
Nos catalogues
Nos outils
Nos gicleurs fioul
Nos bougies pour poêles à pellets
Pièces détachées de chauffage et climatisation
PIÈCES EXPRESS
1 rue Philippe LEBON
ZA Henri Spriet
14120 MONDEVILLE
Téléphone: 02 14 47 16 10
Siret: 790 553 242 00013
Tva: FR 38 790553242

4.7
148 avis